Register Login
Pete Radeka
(813) 760-1979
Refine Search

1070 E Church Street , Unit B, Bartow, FL 33830

$1,900.00 / Monthly
  • 1070 E Church Street , Unit B, Bartow, FL 33830 Main Photo

39 Total Photos [Click to View All]

New to the Market Active
BEDS4 BATHS2 full 1 partial SQUARE FEET1,384 MLS#TB8497982
STATUSActive PROPERTY TYPERental - Townhouse

Property Description

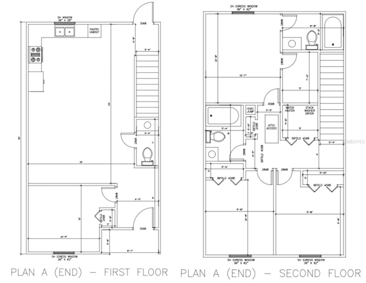
One or more photo(s) has been virtually staged. Welcome to this brand-new 4-bedroom, 2.5-bath townhome located in Bartow, offering modern design and a spacious, thoughtfully designed layout. With multiple units available, this property provides the perfect blend of comfort, convenience, and low-maintenance living.The open-concept main living area creates an inviting space for both everyday living and entertaining, with the living and dining areas flowing seamlessly together. The kitchen features ample cabinetry, modern finishes, and plenty of space to prepare meals and gather with family or guests.Upstairs, the primary suite offers a private retreat with a well-appointed en-suite bathroom and generous closet space. Three additional bedrooms provide flexibility for family, guests, or a home office, while the upstairs layout enhances privacy and functionality.Additional features include an attached garage and a dedicated laundry area, adding to the home's everyday convenience and practicality.Ideally located with easy access to major roadways, this home offers convenient access to shopping, dining, and local amenities, making it a great option for those seeking both comfort and accessibility.Photos may include virtual staging. Floor plans are for illustrative purposes only and may vary; the unit applied for may feature a reversed or mirrored layout.Lease Terms:Available for a minimum one-year lease.Each applicant over the age of 18 must submit a separate rental application.Application Fee: $79.00/adult.To complete this rental application, you must provide a Valid state ID and proof of SSN, monthly income, 3 years of residential history, as well as contact information for your rental reference. Please note that most properties require that the applicant's combined gross income is at least two and a half (2.5) times the monthly rent amount. The Deposit replacement program varies based on screening results. Our partner, TheGuarantors, offers a security bond with rent coverage, making security coverage affordable. They will be your guarantor so you can move into your dream rental with little down at move-in. Link to apply with the Guarantors will be sent after the rental application is approved.Monthly charges:Rent $1900Resident Benefit Package $34.05Liability Insurance $14.95Tenant Responsible for: Electric/Gas, Water/Sewer, Cable, InternetIncluded in rent: Landscaping, Pest ControlParking: Open ParkingPets: Max 2, Subject to screening and breed restrictions

1070 E Church Street , Unit B | MLS# TB8497982

This property located at 1070 E Church Street , Unit B, Bartow, FL 33830 is currently listed for rent with an asking price of $1,900 / Monthly. Search Bartow real estate on pradeka.floridaexecutiverealty.com today.

Property Features

Property Type: Rental - Townhouse
Cooling: Central Air
Heating: Central
Lot Size: 2.19 Acres
Year Built: 2026

Amenities

Living Room/Dining Room Combo
Open Floorplan
Thermostat

Feature Descriptions

Appliances: Built-In Oven, Cooktop, Dishwasher, Disposal, Dryer, Electric Water Heater, Freezer, Ice Maker, Microwave, Refrigerator, Washer
Builder: Cigar City Builders
Community Features: Sidewalks
Directions: From US-98 S, head east on E Church St. Continue for approximately 1 mile. The property will be on your left at 1070 E Church St, Bartow.
Home Warranty Y/N: No
Lease Terms: Twelve Months
Lot Dimensions: 2.19
Model: Plan A (END)
Number of Pets: 2
Pets Allowed: Breed Restrictions, Cats OK, Dogs OK, Monthly Pet Fee, Number Limit
Pets Restrictions: Prohibited breeds include Akita, Pit Bull, Rottweiler, Doberman, Husky, German Shepherd, Chow, Great Dane & mixes. Vet letter, photo & vaccinations required. Dogs must be leashed; clean up required or $75 fine.
Property Attached Y/N: No
Property Sub-Type: Townhouse
Showing Instructions: Call Listing Agent, Other
Water Access Y/N: No

Listed By / Shown By

Listed By

Agency Name: MEGA DOOR PROPERTY MANAGEMENT
Agency Contact: 6562332312

Shown By

Agent Name: Pete Radeka
Agent Phone: (813) 760-1979
Agency Title: Florida Executive Realty

IDX logo

Disclaimer: All information deemed reliable but not guaranteed. All properties are subject to prior sale, change or withdrawal. Neither listing broker(s) or information provider(s) shall be responsible for any typographical errors, misinformation, misprints and shall be held totally harmless. Listing(s) information is provided for consumers personal, non-commercial use and may not be used for any purpose other than to identify prospective properties consumers may be interested in purchasing. Information on this site was last updated 04/16/2026. The listing information on this page last changed on 04/16/2026. The data relating to real estate for sale on this website comes in part from the Internet Data Exchange program of Delta Media Group MLS (last updated Thu 04/16/2026 12:32:37 AM EST) or Stellar MLS (last updated Thu 04/16/2026 12:14:21 AM EST). Real estate listings held by brokerage firms other than Florida Executive Realty may be marked with the Internet Data Exchange logo and detailed information about those properties will include the name of the listing broker(s) when required by the MLS. All rights reserved.

Listing data and photos distributed by MLSGRID
Member Participants (and their affiliated licensees, if applicable) shall indicate on their websites that IDX information is provided exclusively for consumers’ personal non-commercial use, that it may not be used for any purpose other than to identify prospective properties consumers may be interested in purchasing, that the data is deemed reliable but is not guaranteed by MLS GRID, and that the use of the MLS GRID Data may be subject to an end user license agreement prescribed by the Member Participant’s applicable MLS if any and as amended from time to time. MLS GRID may, at its discretion, require use of other disclaimers as necessary to protect Member Participant, and/or their MLS from liability.
Based on information submitted to the MLS GRID. All data is obtained from various sources and may not have been verified by broker or MLS GRID. Supplied Open House Information is subject to change without notice. All information should be independently reviewed and verified for accuracy. Properties may or may not be listed by the office/agent presenting the information.



Privacy Policy / DMCA Notice / ADA Accessibility


Agent License Information: SL650045

Login to My Homefinder

Pixel